室内リフォーム工事実施(2025年10月完了)
ペット飼育相談可能(小型犬or猫1匹まで)
駐輪場1台分無料











物件の概要
◆室内洗濯機置場 ◆システムキッチン(ガス3口+グリル) ◆クローゼット※ロールカーテン付 ◆エアコン(1基) ◆アクセントクロス ◆フロアタイル ◆畳 ◆CATV:ケーブルテレビ品川 ◆インターネット使用料無料(8Mbps+Wi-Fi) ◆バルコニー※竿掛けあり ◆TVモニター付インターホン ◆防犯カメラ ◆宅配ボックス ◆駐輪スペース1台・無料※空あり

檜垣 幸太
大井町賃貸センターのオススメ物件!ペットの飼育も可能な物件です!!
賃料等 | 賃料:72,000円 管理費:3,000円 |
---|---|
敷金・礼金 | 敷金:1ヶ月・礼金:1ヶ月 ※ペット飼育時:敷金1ヶ月追加・解約時償却 |
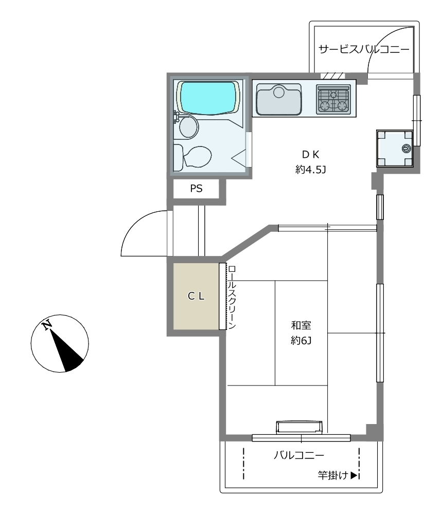
間取り | 1DK(和室:約6.0帖/DK:約4.5帖) |
面積 | 約21.00㎡(約6.35坪) |
所在地 | 品川区大井5-23-2 |
築年月 | 1989年10月 |
交通 | 京浜東北線 大井町駅 徒歩16分・大森駅 徒歩12分/湘南新宿ライン 西大井駅 徒歩10分/京急本線 立会川駅 徒歩14分 |
設備 | ◆室内洗濯機置場 ◆システムキッチン(ガス3口+グリル) ◆クローゼット※ロールカーテン付 ◆エアコン(1基) ◆CATV:ケーブルテレビ品川 ◆インターネット使用料無料(8Mbps+Wi-Fi) ◆バルコニー※竿掛けあり ◆TVモニター付インターホン ◆防犯カメラ ◆宅配ボックス ◆駐輪スペース1台・無料※空あり |
建物詳細 | 鉄骨造3階建/2階部分 |
部屋向き | 南東角部屋 |
入居時期 | 即入居可能 |
現況 | 空室 |
入居条件 | 指定保証会社利用必須/家主推奨保険加入要 2年契約 21,500円/鍵交換費用:18,700円 |
駐輪場・バイク置場 | 駐輪場:有(1台無料) バイク置場:無 |
契約形態 | 普通賃貸借契約 |
取引態様 | 専任 |
備考 | ペット飼育相談可(小型犬or猫1匹まで※敷金1ヶ月追加・解約時償却)/楽器不可・ペット飼育不可・喫煙不可・石油ストーブ不可 |